2023-01-01から1年間の記事一覧

スマート保安モドキ~その1

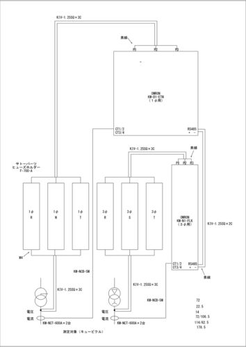
続くかどうか分からないが、電気技術者としてやってみたかったことをのんびりとやってみる。 まず必要なのはPQVfの計測だと思うので、JW-CADの練習も兼ねて接続図を描いてみた。JW-CAD難しい。 電力ロガーは、PanasonicのKW2G-Hで作ったことがあるのだが、Pa…

交通事故を起こしました1 & 電気管理の一人親方は順調です

・交通事故を起こした ・交差点において、自車が直進で、相手が反対車線から右折してくる、典型的な右直事故 ・ある程度は減速したので、両者ともケガは無さそう ・ドライブレコーダーの映像を確認したが、特筆すべき事実も無さそうなので、過失割合は判例ど…

(使用前自己確認)負荷試験、負荷遮断試験:2023年4月13日(木)

法改正により、2023年3月20日より、太陽光の使用前自己確認が500kW以上だったのが10kW以上に拡大された。 負荷試験時のPQVF確認と高調波は共立6310で、負荷遮断試験時の瞬時電圧は日置メモリーハイコーダMR8880にて行った。いずれも管理担当となる技術者の所…

1件目顧客の外部委託業務承認書の受領と電気管理技術者開業手続きの全容解明

1件目顧客の外部委託業務承認書を保安監督部より頂きました。 これをもって、電気管理技術者の開業手続きの全容がわかりました。UnifiedModelingLanguageの「アクティビティ図」っぽいやつで手続きフローを作ってみました。 なお、これは実務経歴書をあらか…

【開業しました】あけましておめでとうございます

一流の電気技術者になるという人生の目標を諦めきれず、前の会社を中途退職し、 本日、2023年1月1日に広島県にて個人事業主の「電気管理技術者」を開業いたしました 九州の皆さまとは多少縁遠くなってしまいましたが、日々の奮闘をあたたかく見守っていただ…